Skip to main content

LCIDA makes strides on Lewis County Commerce Park

February 22, 2018

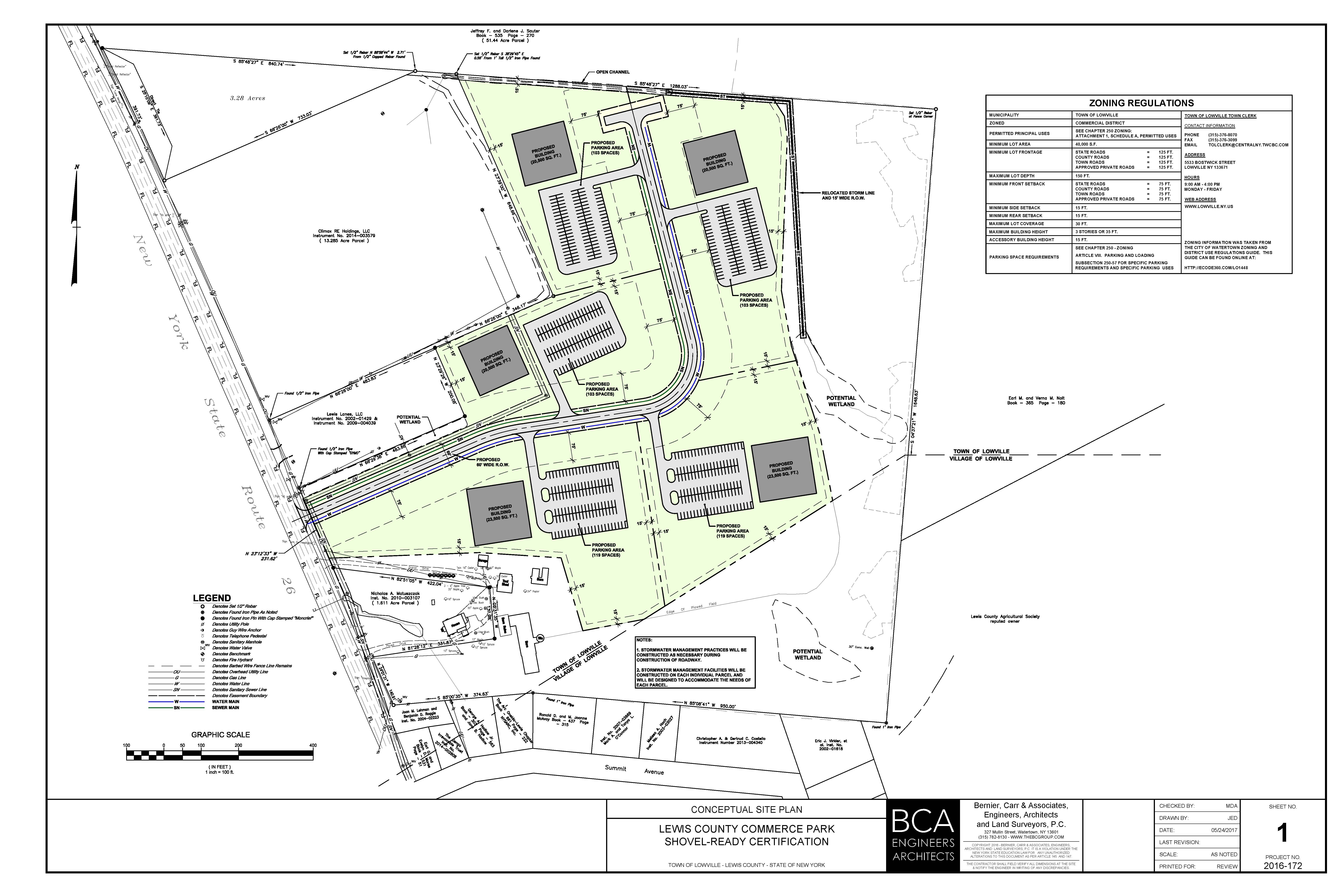
Lewis County Commerce Park Update: 

 CONCEPTUAL SITE PLAN C 2 8 18

LOWVILLE, NY - As plans for the Lewis County Commerce Park continue to develop, many of you are asking:

‘What is a commerce park?’

‘What types of businesses will go in this commerce park?’

‘Why do we need a commerce park?’ 

‘Why is the IDA spending money on a chunk of agricultural land?’ 

The Lewis County Industrial Development Agency (LCIDA) and Lewis County Economic Development have been working diligently to prepare for the future -  future business expansion, future new business start-ups, and future investment in Lewis County.  One of the most important aspects businesses look at when evaluating locations for expansion, is the availability of shovel-ready sites for new builds, existing infrastructure to support their business, and/or  the availability of existing buildings.  Without having sites for businesses to locate, the chances of outside business investment are extremely slim.  Creating a commerce park with the infrastructure that businesses are looking for will help our odds at landing the big project, as well as allow for our existing businesses to expand and grow.  

So, let’s get to the Commerce Park details: The LCIDA has 47 acres under contract to purchase at 7814 NYS Route 26, Lowville, NY with 35 acres of developable land. The Park will allow for approximately five building sites with lot sizes dependent on the needs of the tenants.  The LCIDA has initiated the preliminary activities to ensure the land for the Commerce Park is shovel-ready certified and has submitted an application for Empire State Development Shovel Ready Certification. The site has access to municipal water and wastewater, electric, natural gas and broadband at the curb. The LCIDA intends to initiate the buildout of the Park in 2019 to bring an entrance road and the utilities into the property. A traffic study has been completed and accepted by NYS Department of Transportation and a Phase 1 environmental study is complete with no significant findings. Final SEQR and zoning actions for the property are in process to be completed in spring 2018.

Discussions on the commerce park and neighboring vacant Climax Manufacturing building have spurred local interest from Lewis County businesses, and these conversations may have never occurred, otherwise.  Being able to market Shovel Ready sites and available building space is a necessary asset when marketing our community. 

Economic Development is the combination of many things, and available sites and infrastructure is just a piece of that puzzle.  Lewis County Economic Development continues to work on these pieces in order to provide a friendlier business environment for our local businesses and businesses who are interested in expanding in the North Country.

If you are interested in finding out more information on the Lewis County Commerce Park, contact us!